Nach dem Start der Veranstaltungen
Registerseite Veranstaltung & Verkehr
Registerseite Sonstiges & Verteiler
Das Programmteil PC-KLAUS Veranstaltungen dienst zur digitalen Erfassung und Verwaltung der Erlaubnisse zur Durchführung von Veranstaltungen auf öffentlichen Straßen gemäß §29 Abs. 2 StVO. Die erstellen Erlaubnisse können als Bericht ausgegeben werden. Des Weiteren können die Erlaubnisse auch in verschiedene Dateiformate (.xlsx, .docx, .html, .xml, .pdf, usw.) exportiert werden.
Starten Sie den Programmteil Veranstaltungen in der Menüleiste über den Menüpunkt [Bearbeiten]-[Veranstaltungen] oder über den PC-KLAUS Desktop.
Nach dem Start der Veranstaltungen
Als Eingangsformular wird Ihnen das nachfolgende Formular als Schnellnavigation zur Erledigung Ihrer Aufgaben angezeigt:

Ihre Auswahlmöglichkeiten:
-
[Neu] & [Neue Veranstaltung]: Betätigen Sie diese Schaltfläche, um eine Neuanlage durchzuführen.
-
[Suchen]: Betätigen Sie diese Schaltfläche, um nach bereits existierenden Veranstaltungen zu suchen.
-
[Formulare und Anträge erstellen]: Mit dieser Schaltfläche können Sie das Formular des Antrags und der Erlaubnis als Blanko-Formular ausgeben.
-
[Beenden]: Beendet das Modul der Veranstaltungen.
Die Möglichkeiten der DSGVO (Verfahrensverzeichnis & Betroffenenauskunft) sind bereits in einem anderen Artikel ausführlicher für Sie beschrieben.
Unter der Registerseite "Wiedervorlagen" finden Sie die Wiedervorlagen, die sich auf einzelne, bestimmte Veranstaltungen beziehen.
Die Registerseite "Live-Ticker" zeigt Ihnen auf einen Blick eine Übersicht der derzeitig laufenden Veranstaltungen des Systems an. Mit einem Klick auf den Listeneintrag, öffnet sich direkt der entsprechende Datensatz.
Auf der Registerseite "Konfiguration" finden Sie eine Einstellungsmöglichkeit hinsichtlich der e-Akte. Entweder die Einstellung bleibt auf dem Standardwert, also so, dass die Ausdrucke automatisch als .pdf-Datei in der personenbezogenen eAkte abgelegt werden. Alternativ können Sie die Einstellung so ändern, dass die .pdf-Datei in der eAkte des Vorgangs (zum Antrag oder zur Erlaubnis) abgelegt wird.
Mit der Schaltfläche [Neu] oder [Neuer Vorgang] startet die Erfassung einer Veranstaltung, aufgeteilt in verschiedene Registerseiten. Startend mit der Registerseite "Antragsteller".
Alternativ kann im Ansichtsmodus über den Menüpunkt [Datei]-[Kopie anlegen] auch ein bestehender Datensatz kopiert werden. Damit sparen Sie sich die Eingabe einer neuen Veranstaltung, wenn es eine immer wiederkehrende Veranstaltung ist, bei denen die einzugebenden Daten immer identisch sind.

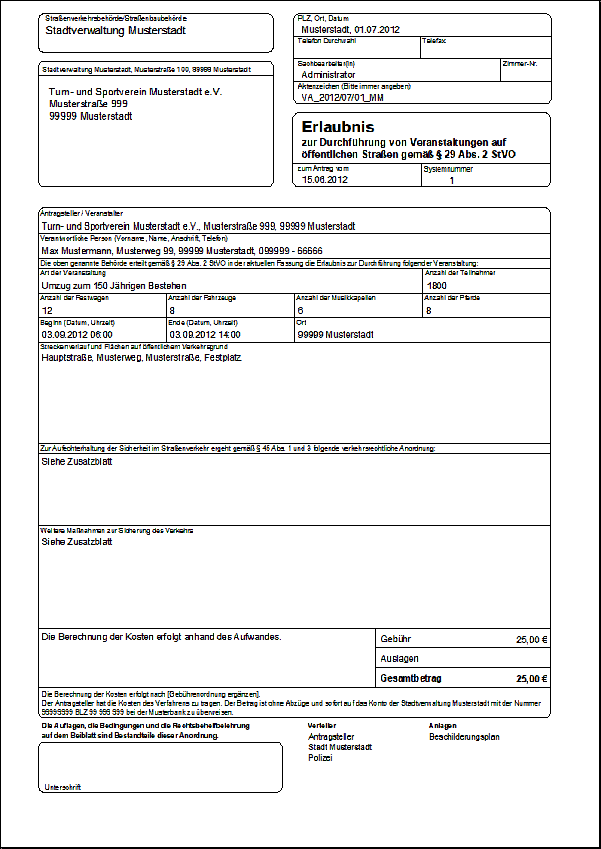
Hier werden die wichtigsten Daten der Erlaubnis abgefragt. Dazu zählen auf der rechten Seite die Datums, zu denen der Antrag gestellt wurde und das Erteilungsdatum der Erlaubnis.
Außerdem erfassen Sie hier den Zeitraum in dem die Erlaubnis gültig ist und die Veranstaltungen durchgeführt werden dürfen.
Für die Erfassung des Antragstellers treffen Sie zu Beginn eine Entscheidung mit Hilfe des Radio-Buttons, ob es sich bei dem Antragsteller um eine natürliche oder juristische Person handelt. Fügen Sie hier die Personenadresse ein. Das Einfügen einer Personenadresse ist für Sie hier auch genauer beschrieben.
Wenn bei einer juristischen Person eine zugewiesene Person hinterlegt ist, wird diese automatisch in das Feld der verantwortlichen Person eingetragen. Falls Sie von dieser Person abweichen wollen, können Sie mit Hilfe der Schaltfläche [Andere] auch eine andere natürliche Person als Vertreter oder Ansprechpartner der juristischen Person hinterlegen.
Registerseite Veranstaltung & Verkehr
Auf den folgenden Registerseiten füllen Sie die Eingabefelder entsprechend Ihrem Vorhaben aus.
Sie bestimmen die Art der Veranstaltung und die Anzahl an Festwagen, Fahrzeugen, Musikkapellen und Pferden die zum Einsatz kommen, sowie die erwartete Teilnehmeranzahl. Außerdem wird der Ort der Veranstaltung abgefragt. Alle Eingabefelder sind Freitexteingaben, sodass Sie hier freie Wahl bei Ihrer Eingabe haben. Wenn Sie hier immer wiederkehrende Texteingaben haben, können Sie diese Texte auch als Textbausteine anlegen und mit Hilfe der kleinen Schaltfläche rechts neben den Eingabefeldern einfügen lassen.
Registerseite Sonstiges & Verteiler
Auf der Registerseite "Sonstiges" definieren Sie die Höhe der Gebühren und der ggf. getätigten Auslagen, die für den Antragsteller der Veranstaltungen fällig werden.
Im Feld der "Berechnung" haben Sie die Möglichkeit einen Freitext zu erfassen, wie sich die Gebühren zusammensetzen, bzw. wie Sie die Gebühren berechnen. Dieses Eingabefeld ist keine Pflichtangabe. Unter den Anlagen können Sie die Anlagen markieren, die Sie mit ausstellen oder die der Antragsteller vorgelegt hat. Je nachdem welches Kontrollkästchen Sie markieren, wird dies auch mit auf dem Erlaubnisschreiben mit ausgegeben.
Unter der Registerseite "Verteiler" finden Sie die Empfänger dieser Veranstaltungserlaubnis. Standardmäßig stehen hier der Antragsteller und Sie selber als Behörde zur Verfügung. Falls Sie weitere Empfänger mit aufnehmen wollen, folgen Sie bitte dem Artikel der Verteileradressen.
Außerdem haben Sie hier die Möglichkeit interne Bemerkungen zu dieser Veranstaltung zu erfassen, die weder auf dem Antrag, noch auf der Erlaubnis mit ausgegeben werden. Die internen Bemerkungen sind also nur digital innerhalb von PC-KLAUS ersichtlich.
Nachdem alle Pflichtfelder befüllt wurden und Sie Ihre Angaben gespeichert haben, können Sie mit Hilfe der Schaltfläche des Druckersymbols, den Druck des Antrags und der Erlaubnis für alle Empfänger durchführen.

Mit den zwei Kontrollkästchen unter dem Punkt "Druckoptionen" können Sie bestimmen, ob beim Ausdruck das Anschriftenfeld befüllt werden soll und ob die Auflagen und Bedingungen im Ausdruck erscheinen sollen.
Auf der zweiten Registerseite "Listen und Formulare", können Sie sich mit Hilfe des Kontrollkästchens [Übersicht], eine Liste aller gespeicherten Datensätze mit den wichtigsten Daten der Erlaubnis ausgeben.
Die Suchmaske der Veranstaltungen startet auf der Registerseite [Schnellsuche]. Hier sind die wichtigsten Merkmale der Erlaubnis, nach denen man suchen kann aufgelistet. Tragen Sie in eins der Eingabefelder Ihren Suchbegriff ein und klicken Sie im Anschluss auf die Schaltfläche [Suchen], um die Suche zu starten.

Auf den anderen Registerseiten können Sie genauer nach Angaben der Erlaubnis suchen.
Mit der Schaltfläche [Suchfelder leeren], werden Ihre Eingaben zurückgesetzt. Wenn Sie eine Suche starten, ohne einen Suchbegriff einzugeben, wird keine Eingrenzung vorgenommen und somit nach allen gespeicherten Datensätzen gesucht.
Im Suchergebnis können Sie mit Hilfe der rechten Maustaste verschiedene Funktionen starten. Unter anderem können Sie hier den ausgewählten Datensatz als Kopie übernehmen, um sich die Neuerfassung zu sparen, z.B. dann, wenn die Kirmes o.Ä. jedes Jahr durch den selben Antragsteller mit den selben Auflagen wiederholt wird.



